Skip to content
All NABCO Products

Nabco GT710 Low Energy Operator, Pull Side, Single Door, 36" Opening

  • SKU: GT710ClearSingle48PullSide

Nabco GT710 Low Energy Operator, Pull Side, Single Door, 36" Opening

  • SKU: GT710ClearSingle48PullSide
  • Available (3‑4 Weeks)
    3-4 Weeks Lead Time
Your Price
$3,132.00 /ea
Finish: Clear Aluminum

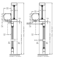
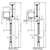
Nabco GT710 Low Energy ADA Swing Door Operator  - Up to 48" Opening Width, Single Door, Pull Side Mounting

Nabco GT710 Low Energy ADA Operator comes in Clear Aluminum or Dark Bronze painted finish and has options for single door or pair door use. The Nabco GT710 is designed to automate nearly any new or existing door. The GT710 operates in both automatic and manual modes with a hydraulic back-check that protects the door and mechanical operator from damage when forced open in windy conditions or when manually operated. The Low Energy performance, combined with adjustable opening and closing speeds, reduces energy usage to help offer a prompt return on your investment.

The Nabco GT710 is approved for use on fire door assemblies rated up to 3 hours and is engineered for interior and exterior use.


Nabco GT8710 & GT710 Order Form - Click Here

Related Hardware

Recently viewed